
產品名稱:A49H-40主安全閥
產品標簽:安全閥,主安全閥
更新時間:2019/5/4 11:22:24
上一個產品: AY802Y-600安全溢流閥
下一個產品:A61Y-320彈簧微啟式安全閥
在線訂購:在線訂購
產品詳情
A49H-40主安全閥產品概述
本閥主要用于電站鍋爐、壓力容器、減溫減壓裝置上使用,防止壓力超過允許最高壓力值,保證設備安全運行。
結構簡述
1、當介質升高到整定壓力時,沖量安全閥打開,介質從脈沖管進入主安全閥的活塞室,推動活塞下降,使閥門自動打開,當沖量閥關閉時,閥瓣又自動關閉。
2、 密封面用鉆基鉻鎳不銹鋼堆焊而成,閥瓣經熱處理,提高了耐磨性和抗沖蝕性。
1、當介質升高到整定壓力時,沖量安全閥打開,介質從脈沖管進入主安全閥的活塞室,推動活塞下降,使閥門自動打開,當沖量閥關閉時,閥瓣又自動關閉。
2、 密封面用鉆基鉻鎳不銹鋼堆焊而成,閥瓣經熱處理,提高了耐磨性和抗沖蝕性。
![]() |
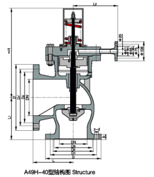
主要外形及連接尺寸
型號
|
公稱通徑
|
連接尺寸
|
||||||||||||||
L
|
L1
|
L2
|
H
|
D
|
D1
|
D2
|
b
|
z-d
|
DN
|
D
|
D1
|
D2
|
b
|
z-d
|
||
A49H-4
|
150
|
220
|
230
|
240
|
486
|
300
|
250
|
204
|
30
|
8-25
|
200
|
360
|
310
|
278
|
34
|
12-25
|
A49H-4
|
200
|
270
|
295
|
330
|
615
|
375
|
320
|
260
|
38
|
12-30
|
300
|
485
|
430
|
390
|
40
|
16-30
|
250
|
300
|
350
|
370
|
646
|
445
|
385
|
313
|
42
|
12-34
|
350
|
550
|
490
|
450
|
44
|
16-34
|
|
注:以上的產品介紹,參數,圖片,數據僅用于參考,如果需更準確的資料請咨詢公司技術服務熱線:18117208829





