
產品詳情
Z60Y焊接閘閥產品概述:
焊接閘閥是通過閘板的升降來控制閥門的啟閉,閘板垂直于流體方向,改變閘板與閥座間相對位置即可改變通道大小。 流體阻力小 , 密封面受介質的忡刷和侵蝕小。 開閉較省力。介質流向不受限制 , 不擾流、不降低壓力。 形體簡單 , 結構長度短,制造工藝性好,適用范圍廣。
閥類
|
傳動方式
|
連接形式
|
結構形式
|
密封面
|
公稱壓力
|
閥體材料
|
閘閥
|
傘齒輪
|
焊接
|
彈性閘板
|
D802/D812
STL/STL |
P54100V、P54140V
P54170V、P57170V |
WCB-C ZGCr5Mo
WCB-C6 ZG20CrMo-I WCB-C9 ZG35CrMoV |
說明:Z60Y-P54160V DN25手動電站閘閥,焊接連接彈性閘板,密封面硬質合金,540℃以下公稱壓力16.0MPa閥體為鉻鉬鋼
焊接閘閥技術參數
產品型號
|
Z60Y-160
|
Z60Y-P54100V
|
|||||||
Z60Y-200
|
Z60Y-P54140V
|
||||||||
Z60Y-250
|
Z60Y-P54170V
|
||||||||
Z60Y-320
|
Z60Y-P57170V
|
||||||||
傘齒輪傳動閘閥在型號“Z”后插入“5”為Z560Y
|
|||||||||
公稱通徑(DN/mm)
|
15~50、(21"~16")2
|
||||||||
適用溫度/℃
|
≤425
|
≤552
|
≤593
|
≤550
|
|||||
適用介質
|
水、蒸汽、氣體、石油產品
|
||||||||
試驗壓力(MPa)
|
公稱壓力PN/MPa
|
16.0
|
20.0
|
25.0
|
32.0
|
P54100V
|
P54140V
|
P54170V
|
P54170V
|
強度試驗
|
24
|
30
|
37.5
|
48
|
30
|
42
|
48
|
6.3
|
|
密封試驗
|
17.6
|
22
|
27.5
|
35.1
|
11
|
15.4
|
17.8
|
18
|
|
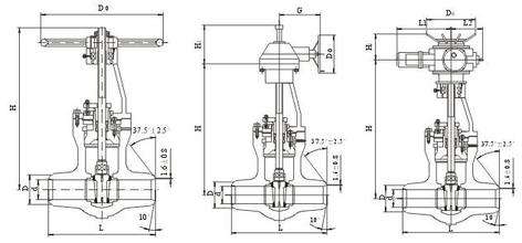
![]() |
焊接閘閥外形尺寸 國標電站(手動)
公稱壓力
PN(MPa) |
公稱通徑
DN(mm) |
外形尺寸及連接尺寸(mm)
|
||||
L
|
D
|
L1
|
d
|
H
|
||
16.0
|
15
|
90
|
23
|
10
|
13
|
182
|
20
|
110
|
29
|
11
|
18
|
210
|
|
25
|
120
|
35
|
12
|
23
|
235
|
|
32
|
130
|
43
|
14
|
28
|
258
|
|
40
|
150
|
49
|
15
|
36
|
285
|
|
50
|
170
|
61
|
16
|
45
|
338
|
|
20.0
|
15
|
90
|
23
|
10
|
13
|
182
|
20
|
110
|
29
|
11
|
18
|
210
|
|
25
|
120
|
35
|
12
|
23
|
235
|
|
32
|
130
|
43
|
14
|
28
|
258
|
|
40
|
150
|
49
|
15
|
36
|
285
|
|
50
|
170
|
61
|
16
|
45
|
338
|
|
25.0
|
15
|
90
|
23
|
10
|
13
|
182
|
20
|
110
|
29
|
11
|
18
|
210
|
|
25
|
120
|
35
|
12
|
23
|
235
|
|
32
|
130
|
43
|
14
|
28
|
258
|
|
40
|
150
|
49
|
15
|
36
|
285
|
|
50
|
170
|
61
|
16
|
45
|
338
|
|
焊接閘閥磅級電站(手動)
型號
|
規格in
|
外形尺寸及連接尺寸(mm)
|
||
d
|
L
|
H
|
||
Z60Y-1500Lb
|
212
|
56
|
254
|
671
|
3
|
64
|
305
|
692
|
|
4
|
84
|
406
|
790
|
|
5
|
100
|
483
|
875
|
|
6
|
126
|
559
|
1055
|
|
8
|
158
|
711
|
1148
|
|
Z60Y-2000Lb
|
212
|
50
|
330
|
640
|
3
|
60
|
368
|
690
|
|
4
|
80
|
457
|
806
|
|
5
|
96
|
533
|
980
|
|
6
|
118
|
610
|
1090
|
|
Z60Y-2000Lb
|
212
|
46
|
330
|
639
|
3
|
54
|
368
|
680
|
|
4
|
70
|
457
|
805
|
|
5
|
86
|
533
|
965
|
|
6
|
104
|
610
|
1070
|
|
Z60Y-3500Lb
|
3
|
44
|
440
|
745
|
4
|
56
|
540
|
860
|
|
焊接閘閥磅級電站(傘齒輪)
型號
|
規格in
|
外形尺寸及連接尺寸(mm)
|
||
d
|
L
|
H
|
||
Z560Y-1500Lb
|
8
|
158
|
711
|
813
|
10
|
200
|
864
|
998
|
|
12
|
250
|
991
|
1156
|
|
14
|
280
|
1067
|
1287
|
|
16
|
318
|
1194
|
1413
|
|
Z560-2000Lb
|
8
|
148
|
762
|
935
|
10
|
180
|
914
|
1050
|
|
12
|
222
|
1041
|
1150
|
|
14
|
254
|
1118
|
1231
|
|
16
|
294
|
1245
|
1330
|
|
型號
|
規格in
|
外形尺寸及連接尺寸(mm)
|
||
d
|
L
|
H
|
||
Z560Y-2500Lb
|
6
|
127
|
610
|
928
|
8
|
130
|
762
|
851
|
|
10
|
162
|
914
|
1031
|
|
12
|
210
|
1041
|
1166
|
|
14
|
234
|
1118
|
1217
|
|
16
|
264
|
1245
|
1381
|
|
Z560Y-3500Lb
|
5
|
74
|
616
|
774
|
6
|
88
|
692
|
857
|
|
8
|
116
|
846
|
1041
|
|
10
|
142
|
1000
|
1197
|
|
12
|
174
|
1124
|
1338
|
|
注:以上的產品介紹,參數,圖片,數據僅用于參考,如果需更準確的資料請咨詢公司技術服務熱線:18117208829





