
產品名稱:Q11Y/Q41Y不銹鋼高壓球閥
產品標簽:球閥,不銹鋼高壓球閥
更新時間:2019/6/9 14:29:59
上一個產品: Q11F一片式球閥
下一個產品:Q11Y/Q41Y高壓鍛鋼球閥
在線訂購:在線訂購
產品詳情
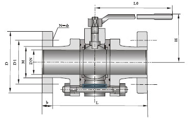
公稱通徑 |
尺寸(mm) |
|||
L |
H |
D |
D1 |
|
10 |
90 |
76 |
32 |
3/8 |
15 |
90 |
76 |
32 |
1/2 |
20 |
100 |
81 |
38 |
3/4 |
25 |
115 |
92 |
45 |
1 |
32 |
130 |
114 |
55 |
11/4 |
40 |
150 |
125 |
65 |
11/2 |
50 |
170 |
144 |
75 |
2 |
公稱通徑 |
尺寸(mm) |
|||||||||||||||
L |
d1 |
L1 |
D |
D1 |
D2 |
b |
Z-Φd |
H |
||||||||
mm |
in |
全通徑FP |
縮徑RP |
全通徑FP |
縮徑RP |
全通徑FP |
縮徑RP |
QA41 |
QA341 |
QA641 |
QA941 |
|||||
15 |
1/2″ |
130 |
- |
15 |
- |
- |
- |
95 |
65 |
45 |
14 |
4-14 |
62 |
- |
200 |
- |
20 |
3/4″ |
140 |
- |
20 |
- |
- |
- |
105 |
75 |
55 |
14 |
4-14 |
68 |
- |
204 |
- |
25 |
1″ |
150 |
- |
25 |
- |
- |
- |
115 |
85 |
65 |
14 |
4-14 |
75 |
- |
215 |
360 |
32 |
11/4″ |
165 |
- |
32 |
- |
- |
- |
135 |
100 |
78 |
16 |
4-14 |
85 |
- |
240 |
390 |
40 |
11/2″ |
182 |
- |
40 |
|
- |
- |
145 |
110 |
85 |
16 |
4-18 |
95 |
- |
264 |
395 |
50 |
2″ |
200 |
- |
50 |
- |
- |
- |
160 |
125 |
100 |
16 |
4-18 |
110 |
- |
360 |
472 |
65 |
21/2″ |
220 |
- |
65 |
- |
- |
- |
180 |
145 |
120 |
18 |
4-18 |
130 |
- |
379 |
530 |
80 |
3″ |
250 |
283 |
80 |
65 |
- |
- |
195 |
160 |
135 |
20 |
4-18 |
155 |
- |
452 |
580 |
100 |
4″ |
280 |
305 |
100 |
80 |
- |
- |
215 |
180 |
155 |
20 |
8-18 |
180 |
320 |
479 |
630 |
125 |
5″ |
320 |
381 |
125 |
100 |
- |
- |
245 |
210 |
185 |
22 |
8-18 |
250 |
380 |
646 |
710 |
150 |
6″ |
360 |
403 |
150 |
125 |
- |
- |
280 |
240 |
210 |
24 |
8-23 |
275 |
400 |
666 |
670 |
200 |
8″ |
400 |
419 |
200 |
150 |
- |
- |
335 |
295 |
265 |
26 |
12-23 |
330 |
450 |
615 |
825 |
![]() |





