
產品名稱:EQ940Y/EQ947Y電動偏心半球閥
產品標簽:球閥,電動偏心半球閥
更新時間:2019/6/8 10:45:36
上一個產品: EQ640H/EQ647H氣動偏心半球閥
下一個產品:FQ41F46襯氟放料球閥
在線訂購:在線訂購
產品詳情
序號 |
名稱 |
代號 |
材料 |
||
WCB |
304 CF8 |
316 CF8M |
|||
1 |
閥體 |
|
WCB ZG230-450 |
0Cr18Ni9 |
0Cr18Ni12Mo2Ti |
2 |
下端蓋 |
|
Q235-A |
1Cr18Ni9Ti |
0Cr18Ni12Mo2Ti |
3 |
內六角圓柱頭螺釘 |
GB/T70-2000 |
Q235-A |
1Cr17Ni2 |
0Cr18Ni12Mo2Ti |
4 |
下固定軸調節螺栓 |
|
Q235-A |
1Cr17Ni2 |
1Cr17Ni2 |
5 |
六角螺母 |
GB/T6710-2000 |
Q235-A |
1Cr17Ni2 |
1Cr17Ni2 |
6 |
下墊片 |
|
不銹鋼柔性石墨;PTFE;316夾柔性石墨 |
||
7 |
下軸承 |
|
0Cr18Ni9Ti |
0Cr18Ni9Ti |
0Cr18Ni12Mo2Ti |
8 |
下固定軸 |
|
2Cr13 |
304 |
0Cr18Ni12Mo2Ti |
9 |
球體 |
|
ZG2Cr13 |
0Cr18Ni9 |
0Cr18Ni12Mo2Ti |
10 |
閥座壓圈 |
|
Q225-A |
1Cr18Ni9Ti |
0Cr18Ni12Mo2Ti |
11 |
閥座 |
|
Q225-A |
PTFE/1Cr18Ni12Mo2Ti |
PTFE/1Cr18Ni12Mo2Ti |
12 |
內六角圓柱頭螺釘 |
GB/T70-2000 |
Q235-A |
1Cr17Ni2 |
1Cr17Ni2 |
13 |
閥座墊片 |
|
不銹鋼柔性石墨 |
1Cr17Ni2 |
0Cr18Ni12Mo2Ti |
14 |
閥桿 |
|
2Cr13 |
1Cr18Ni9Ti |
0Cr18Ni12Mo2Ti |
15 |
上軸承 |
|
0Cr18Ni9Ti |
0Cr18Ni9Ti |
0Cr18Ni12Mo2Ti |
16 |
對開圓環 |
|
1Cr18Ni9Ti |
1Cr18Ni9Ti |
1Cr18Ni9Ti |
17 |
定位圈 |
|
1Cr13 |
1Cr18Ni9Ti |
1Cr18Ni9Ti |
18 |
填料 |
|
柔性石墨 |
柔性石墨;PTFE |
柔性石墨;PTFE |
19 |
六角螺塞墊片 |
|
0Cr18Ni9Ti |
0Cr18Ni9Ti |
0Cr18Ni9Ti |
20 |
六角螺塞 |
|
2Cr13 |
1Cr17Ni2 |
1Cr17Ni2 |
21 |
六角螺塞 |
|
2Cr13 |
1Cr17Ni2 |
1Cr17Ni2 |
22 |
支架 |
|
WCB ZG230-450 |
WCB;304 |
WCB;304 |
23 |
雙頭螺栓 |
GB/T901-1988 |
35CrMoA |
1Cr17Ni2 |
1Cr17Ni2 |
24 |
六角螺母 |
GB/T6170-2000 |
Q245-A |
0Cr18Ni9 |
0Cr18Ni9 |
25 |
填料壓套 |
|
1Cr13 |
1Cr18Ni12Mo2Ti/1Cr18Ni9 |
1Cr18Ni12Mo2Ti/1Cr18Ni9 |
26 |
填料壓板 |
|
WCB |
0Cr18Ni9 |
0Cr18Ni9 |
27 |
雙頭螺栓 |
GB/T901-1988 |
35CrMoA |
1Cr17Ni2 |
1Cr17Ni2 |
28 |
六角螺母 |
GB/T6170-2000 |
Q245-A |
0Cr18Ni |
0Cr18Ni |
29 |
六角螺栓 |
GB/T5783-200 |
Q235-A |
1Cr17Ni2 |
1Cr17Ni2 |
30 |
驅動裝置 |
|
|
|
|
31 |
六角螺塞墊片 |
|
0Cr18Ni9Ti |
0Cr18Ni9Ti |
0Cr18Ni9Ti |
32 |
六角螺塞 |
|
2Cr13 |
0Cr18Ni9Ti |
0Cr18Ni9Ti |
材料性能 |
材料代號 |
|||||
WCB |
304 |
316 |
304L |
316L |
321 |
|
ZG230 |
0Cr18Ni9(CF8) |
1Cr18Ni12Mo2Ti |
00Cr18Ni10 |
00Cr17Ni14Mo2 |
ZG7Cr18Ni9T |
|
適用介質 |
水、油品、蒸汽 |
硝酸類 |
醋酸類 |
強氧化介質 |
尿素等腐蝕介質 |
硝酸類 |
測試范圍Mpa |
||||||
項目 |
公稱壓力 |
殼體壓力試驗 |
密封測試 |
上密封測試 |
低壓密封測試 |
探傷測試 |
試驗介質 |
水 Mpa |
水 Mpa |
水 Mpa |
氣 Mpa |
GB/T6440-1992 |
|
時間 |
(S) |
120 |
60 |
60 |
0.5~0.6 |
|
壓力測試 |
1.0Mpa |
1.5 |
1.1 |
1.1 |
||
|
1.6Mpa |
2.4 |
1.76 |
1.76 |
||
|
2.5Mpa |
3.75 |
2.75 |
2.75 |
||
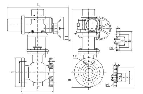
公稱壓力 |
公稱通徑 |
尺寸(mm) |
|||||||
L |
D |
K |
d |
f |
C |
Z-¢d |
H |
||
1.6 |
40 |
165 |
150 |
110 |
85 |
3 |
16 |
4-¢18 |
|
50 |
178 |
165 |
125 |
100 |
|
||||
65 |
190 |
185 |
145 |
120 |
18 |
280 |
|||
80 |
203 |
200 |
160 |
135 |
20 |
8-¢18 |
320 |
||
100 |
229 |
220 |
180 |
155 |
370 |
||||
125 |
254 |
250 |
210 |
185 |
22 |
430 |
|||
150 |
267 |
285 |
240 |
210 |
24 |
8-¢23 |
510 |
||
200 |
292 |
340 |
295 |
265 |
26 |
12¢-23 |
600 |
||
250 |
330 |
405 |
355 |
320 |
30 |
12-¢26 |
690 |
||
300 |
502 |
460 |
410 |
375 |
4 |
760 |
|||
350 |
572 |
520 |
470 |
435 |
34 |
16-¢26 |
830 |
||
400 |
610 |
580 |
525 |
485 |
36 |
16-¢30 |
925 |
||
450 |
660 |
640 |
585 |
545 |
40 |
20-¢30 |
1025 |
||
500 |
700 |
715 |
650 |
608 |
44 |
20-¢34 |
1120 |
||
600 |
813 |
840 |
770 |
718 |
5 |
48 |
20-¢36 |
1210 |
|
![]() |





